Description
| CO2 transcritique | oui |
| Concentration des gaz | oui |
| Panneau d’avertissement DC-CAV-XX: | |
| Alimentation | 24 VDC |
| Courant Max | 100mA |
| Texte (à spécifier à la commande) | Max 2 lignes ( 20 caractères par ligne) |
| Sirène intégrée | Puissance 70dB à 1m |
| Avertisseur opto-acoustique DC-CAV-OA: | |
| Alimentation | 24 VDC |
| Courant Max | 50mA |
| Puissance | 90 ou 120dB à 1m (programmable) |
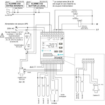
Surveillance du CO2 – chambre froide
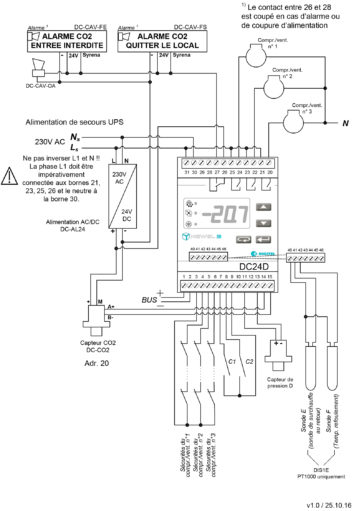
Surveillance du CO2 – local compresseurs
Surveillance du CO2 – Plusieurs points de mesure du CO2









